北海道札幌市手稲区新発寒五条8丁目 /1LDK /- - /3階部分 /北東向き /
| 賃料(共益費) | 36,000円 (なし) |
|---|
| 間取り(面積) | 1LDK ( -- m2) |
|---|
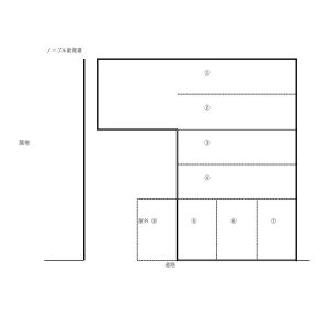
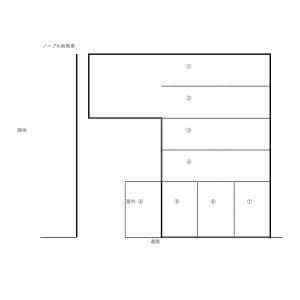
Room Plan
| 間取タイプ | 1LDK | ||
|---|---|---|---|
| 間取詳細 | 7×2k×5.5 | ||
| 専有面積 | |||
| 方 位 | 北東向き | ||
| 所在階 | 3階部分 | ||
| 賃 料 | 36,000円 | ||
| 管理費 | なし | ||
| 敷 金 | なし | ||
| 礼 金 | なし | ||
| 状 態 | 空室
[内装中] 入居時期:2026年3月中旬 |
||
| 物件種別 | [住居用] アパート |
|---|---|
| 所在地 | 北海道札幌市手稲区新発寒五条8丁目 |
| 交通 | 函館線「稲積公園」徒歩20分 |
| 構造 | 木造一部RC造 地上3階 |
| 築年 | 1992年01月築 |
| 駐車場 | 敷地内駐車場/空き1台/4,000円 |
○ 最上階
○ ペット相談(小型犬、猫可) ○ 2人入居可能 ○ 生活保護者入居可能
○ 給湯器(プロパンガス)
○ 風呂(ユニットバス) ○ トイレ(水洗)
○ エアコン(冷房のみ) ○ 暖房(灯油)
○ UHFアンテナ(地デジ用)
○ 電気 ○ ガス(プロパンガス) ○ 水道(公営) ○ 排水(公共下水)
| 物件種別 | [住居用] アパート |
|---|---|
| 物件名 | ノーブル新発寒 |
| 号室名 | 202 |
| 所在地 | 北海道札幌市手稲区新発寒五条8丁目7-24 |
| 交通 | 函館線「稲積公園」徒歩20分 |
| 構造 | 木造一部RC造地上3階 |
| 築年月 | 1992年01月 |
| 駐車場 | 敷地内駐車場/空き1台/4,000円 |
| 町会費 | |
| 所在階 | 3階部分 |
| 方位 | 北東向き   |
| 間取り | 1LDK 7×2k×5.5 |
| 専有面積 | - - m2 |
| 状態 | 空室[内装中] |
| 賃料 | 36,000円 |
| 共益費 | なし |
| 敷金 | なし |
| 礼金 | なし |
| 他諸経費 | 保険:保険要加入 東日本少額短期保険 2年契約 20,000円 カギ交換費用:27,500円(入居時) ※ 特記されているものだけを表示していますので、詳しくはお問い合わせの際にご確認ください。 |
| その他 | 普通借家2年間 普通借家 |
| オススメ | |
| 設備・条件 | ○ 最上階 ○ ペット相談(小型犬、猫可) ○ 2人入居可能 ○ 生活保護者入居可能 ○ 給湯器(プロパンガス) ○ 風呂(ユニットバス) ○ トイレ(水洗) ○ エアコン(冷房のみ) ○ 暖房(灯油) ○ UHFアンテナ(地デジ用) ○ 電気 ○ ガス(プロパンガス) ○ 水道(公営) ○ 排水(公共下水) |
| 情報更新日 | 2026-02-02 18:15:53 |
| お問合せ |

| 間取り | / 1LDK | ||
|---|---|---|---|
| 完成年月 | / 1992年01月 | ||
| 構造 | / 木造一部RC造地上3階 | ||
| 入居可能日 | / 空室[内装中] | ||
| 総戸数 | / | ||
| 契約形態 | / | ||
| 駐車場 | / | ||
| 売却(敷引) | / | ||
| 割引サービス | / | ||
| 設備 | / ○ 最上階 ○ ペット相談(小型犬、猫可) ○ 2人入居可能 ○ 生活保護者入居可能 ○ 給湯器(プロパンガス) ○ 風呂(ユニットバス) ○ トイレ(水洗) ○ エアコン(冷房のみ) ○ 暖房(灯油) ○ UHFアンテナ(地デジ用) ○ 電気 ○ ガス(プロパンガス) ○ 水道(公営) ○ 排水(公共下水) | ||
| 備考 |
/
普通借家2年間 普通借家 |
||
ノーブル新発寒 202
物件所在地:北海道札幌市手稲区新発寒五条8丁目
函館線「稲積公園」徒歩20分
36,000円
| ■管理費 | なし |
|---|---|
| ■敷金 | なし |
| ■礼金 | なし |
|
<その他費用>
保険:保険要加入 東日本少額短期保険 2年契約 20,000円 カギ交換費用:27,500円(入居時) |
|