北海道札幌市西区宮の沢二条2丁目 /2LDK /55m2 /3階部分 /向き /
| 賃料(共益費) | 55,000円 (0円) |
|---|
| 間取り(面積) | 2LDK ( 55 m2) |
|---|
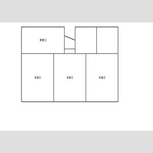
Room Plan
| 間取タイプ | 2LDK | ||
|---|---|---|---|
| 間取詳細 | LDK:11.75畳 和:6畳 洋:6畳 | ||
| 専有面積 | 55m2 | ||
| 方 位 | |||
| 所在階 | 3階部分 | ||
| 賃 料 | 55,000円 | ||
| 管理費 | 0円 | ||
| 敷 金 | 0円 | ||
| 礼 金 | 0円 | ||
| 状 態 | 退去予定
入居時期:相談 |
||
| 物件種別 | [住居用] アパート |
|---|---|
| 所在地 | 北海道札幌市西区宮の沢二条2丁目 |
| 交通 | 地下東西線「宮の沢」徒歩8分 函館線「発寒」徒歩24分 地下東西線「発寒南」徒歩24分 |
| 構造 | 木造 地上3階 |
| 築年 | 1995年08月築 |
| 駐車場 | 敷地内駐車場/空き1台/5,500円高さ:160CM ※現地確認可能 |
○ 角部屋 ○ 最上階
○ 2人入居可能 ○ 保証人不要 ○ 保証会社利用必須
○ 給湯器(プロパンガス) ○ ガスコンロ(3口以上) ○ システムキッチン
○ 風呂 ○ トイレ(水洗) ○ 洗面台(独立) ○ シャワートイレ ○ 洗髪洗面化粧台 ○ バス・トイレ別 ○ 洗濯機置場(室内)
○ 暖房(灯油)
○ トランクルーム ○ シューズボックス
○ UHFアンテナ(地デジ用)
○ インターホン
○ ロードヒーティング ○ ガス(プロパンガス) ○ 水道(公営) ○ 排水(公共下水) ○ フローリング
| 物件種別 | [住居用] アパート |
|---|---|
| 物件名 | 宮の沢2-2ハウス |
| 号室名 | 3 |
| 所在地 | 北海道札幌市西区宮の沢二条2丁目8-1 |
| 交通 | 地下東西線「宮の沢」徒歩8分 函館線「発寒」徒歩24分 地下東西線「発寒南」徒歩24分 |
| 構造 | 木造地上3階 |
| 築年月 | 1995年08月 |
| 駐車場 | 敷地内駐車場/空き1台/5,500円高さ:160CM ※現地確認可能 |
| 町会費 | |
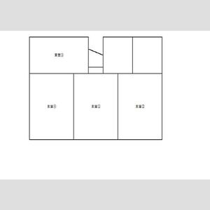
| 所在階 | 3階部分 |
| 方位 | - -   |
| 間取り | 2LDK LDK:11.75畳 和:6畳 洋:6畳 |
| 専有面積 | 55 m2 |
| 状態 | 退去予定 |
| 賃料 | 55,000円 |
| 共益費 | 0円 |
| 敷金 | 0円 |
| 礼金 | 0円 |
| 他諸経費 | 保険:保険要加入 2年契約 23,500円 ~ ※ 特記されているものだけを表示していますので、詳しくはお問い合わせの際にご確認ください。 |
| その他 | 普通借家2年間 普通借家 |
| オススメ | |
| 設備・条件 | ○ 角部屋 ○ 最上階 ○ 2人入居可能 ○ 保証人不要 ○ 保証会社利用必須 ○ 給湯器(プロパンガス) ○ ガスコンロ(3口以上) ○ システムキッチン ○ 風呂 ○ トイレ(水洗) ○ 洗面台(独立) ○ シャワートイレ ○ 洗髪洗面化粧台 ○ バス・トイレ別 ○ 洗濯機置場(室内) ○ 暖房(灯油) ○ トランクルーム ○ シューズボックス ○ UHFアンテナ(地デジ用) ○ インターホン ○ ロードヒーティング ○ ガス(プロパンガス) ○ 水道(公営) ○ 排水(公共下水) ○ フローリング |
| 情報更新日 | 2026-03-10 06:46:29 |
| お問合せ |

| 間取り | / 2LDK | ||
|---|---|---|---|
| 完成年月 | / 1995年08月 | ||
| 構造 | / 木造地上3階 | ||
| 入居可能日 | / 退去予定 | ||
| 総戸数 | / | ||
| 契約形態 | / | ||
| 駐車場 | / 高さ:160CM ※現地確認可能 | ||
| 売却(敷引) | / | ||
| 割引サービス | / | ||
| 設備 | / ○ 角部屋 ○ 最上階 ○ 2人入居可能 ○ 保証人不要 ○ 保証会社利用必須 ○ 給湯器(プロパンガス) ○ ガスコンロ(3口以上) ○ システムキッチン ○ 風呂 ○ トイレ(水洗) ○ 洗面台(独立) ○ シャワートイレ ○ 洗髪洗面化粧台 ○ バス・トイレ別 ○ 洗濯機置場(室内) ○ 暖房(灯油) ○ トランクルーム ○ シューズボックス ○ UHFアンテナ(地デジ用) ○ インターホン ○ ロードヒーティング ○ ガス(プロパンガス) ○ 水道(公営) ○ 排水(公共下水) ○ フローリング | ||
| 備考 |
/
普通借家2年間 普通借家 |
||
宮の沢2-2ハウス 3
物件所在地:北海道札幌市西区宮の沢二条2丁目
地下東西線「宮の沢」徒歩8分
函館線「発寒」徒歩24分
地下東西線「発寒南」徒歩24分
55,000円
| ■管理費 | 0円 |
|---|---|
| ■敷金 | 0円 |
| ■礼金 | 0円 |
|
<その他費用>
保険:保険要加入 2年契約 23,500円 ~ |
|